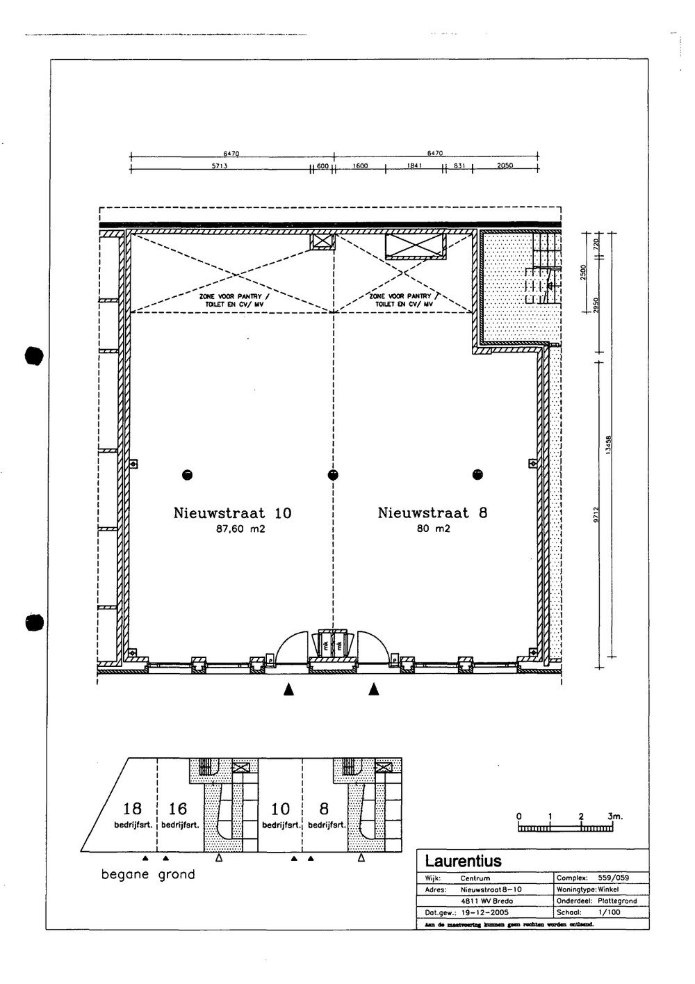
Nieuwstraat 8
4811 WV BREDA
€ 25.050 p.j.
Kenmerken
Bestemming
WinkelruimteLigging
winkelgebied stadscentrumHuurprijs
€ 25.050 per jaarOppervlakte
180 m2Bouwjaar
1997Units
334Omschrijving
Aan de nieuwe haven van Breda bevindt zich de Nieuwstraat te Breda met op de begane grond een multifunctionele ruimte te huur, tegenover het prachtige hotel Nassau.
Deze straat is gelegen in het kernwinkelgebied in de nabijheid van de Barones, Eindstraat en Lange Brugstraat.
In de directe omgeving zijn voldoende (betaalde) parkeerfaciliteiten aanwezig in de diverse parkeergarages.
Oppervlakte: Circa 186 m².
Opleveringsniveau: Het geheel is onder andere voorzien van de navolgende zaken:
• plafonds met verlichting;
• huidige wandafwerking;
• huidige vloerafwerking;
• toilet heren en dames;
• eigen nutsvoorzieningen ten behoeve van het registeren van het verbruik van gas, water en elektra.
Bestemming:
* detailhandel;
* dienstverlening, zoals een kapsalon, schoonheidssalon;
* maatschappelijk, zoals zorg, sport, cultuur, fysio e.d.;
* Horeca 1; lunchroom;
* kantoor.
Huurprijs: € 25.050,-- per jaar exclusief BTW
Betaling: Per maand vooruit.
Servicekosten: €5 per maand inzake glas- en ontstoppingsfonds.
Huurtermijn: 5 Jaren met telkenmale 5 optiejaren. (opzegtermijn van 12 maanden). kortere huurperiode in overleg bespreekbaar.
Waarborgsom: Ter grootte van een kwartaalsverplichting inclusief BTW.
Indexering: Jaarlijks, voor het eerst één jaar na huuringangsdatum, op basis van de wijziging van het maandprijsindexcijfer volgens de consumentenprijsindex (CPI), reeks CPI-alle huishoudens, gepubliceerd door het Centraal Bureau voor de Statistiek (CBS).
Aanvaarding: Per direct mogelijk.
Omzetbelasting: Alle in deze brochure vermelde bedragen zijn, tenzij uitdrukkelijk vermeld, exclusief omzetbelasting (BTW). Voorts is er in deze brochure uitgegaan dat de prestaties van de huurder voor meer dan 90% in de met BTW-belaste sfeer plaatsvinden.











